Oportunidades en créditos inmobiliarios impagados (NPL) y activos judiciales en España
Listado actualizado de oportunidades en créditos inmobiliarios impagados (NPL), cesiones de remate y venta sin posesión.
Accede a activos judiciales en distintas fases del procedimiento y analiza cada operación con criterio.
En un crédito inmobiliario impagado (NPL) no se vende el inmueble, sino el crédito con garantía hipotecaria sobre ese activo. Esta diferencia es clave para entender plazos, riesgos y estrategia de salida.
Más de 13.000 oportunidades publicadas y operaciones off-market disponibles.



Local Comercial-Calle Mar Rojo, 2- Coslada
Oferta inicial/ a mejorar: €150,000.00
El precio de reserva no se ha cumplido por ninguna oferta.
Venta de inmueble
Local comercial adjudicado en Calle Mar Rojo 4, Escalera 8, Local 2, Coslada (Madrid)
Referencia interna: TES-PR-01-0018
Descripción del activo
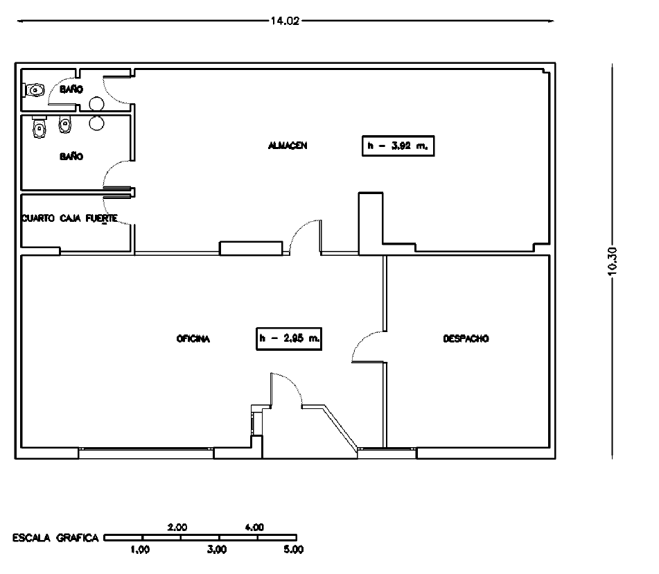
Local comercial en planta baja, con acceso directo desde calle, situado en Coslada (Madrid).
El activo cuenta con una superficie construida aproximada de 142,82 m² y se distribuye en zona de acceso con oficina, despacho, almacén y dos aseos.
Se trata de un local acondicionado para uso comercial/oficina y almacén, con fachada aproximada de 13,75 metros y una altura libre aproximada de 3,50 metros.
Localización del inmueble
Dirección actual judicial: Calle Mar Rojo, 4, Escalera 8, Planta 0, Puerta 2, Local 2
Localización alternativa en tasación/nota antigua: Calle Mar Rojo, 2, derecha / Local comercial 8-2, bloque 8, calle C
Localidad: Coslada
Provincia: Madrid
Código Postal: 28820
Datos registrales
Finca registral: 41.217
CRU: 28080000445403
Registro de la Propiedad de Coslada
Superficie construida registral aproximada: 142,82 m²
Situación jurídica y posesoria
Activo procedente de ejecución hipotecaria.
La subasta judicial concluyó sin pujas y posteriormente se dictó decreto de adjudicación a favor de la parte ejecutante/cesionaria.
En la documentación judicial consta que la situación posesoria no ha podido acreditarse de forma fehaciente.
No hay contacto con el deudor, por lo que se desconoce la situación del colateral.
Condiciones de la operación
Activo VSP con adjudicación judicial ya acordada, pendiente de inscripción.
La comercialización se realiza en el estado físico, jurídico y posesoria actual del inmueble.
Pendiente de culminación documental del trámite judicial de notificación/firmeza y de la expedición del testimonio y mandamiento de cancelación, en su caso.
Se recomienda due diligence jurídica y registral previa por parte del comprador.
Acceso a oportunidades
Accede a oportunidades inmobiliarias antes de que lleguen al mercado
Únete a nuestra red de inversores
Recibe oportunidades NPL, cesiones de remate y activos sin posesión según tu perfil de inversión.
Operaciones off-market
Consulta operaciones fuera de mercado y oportunidades que ya no están activas públicamente.
Alta gratuita y sin compromiso. Las oportunidades off-market se comparten primero con nuestra red de inversores.
Cómo usar este listado
1
Filtra por tipología y ubicación
2
Revisa el estado de la operación
3
Entra en la ficha y valida: colateral, fase del procedimiento y estrategia de salida
Preguntas frecuentes
¿Qué es un crédito inmobiliario impagado (NPL)?
Es un crédito hipotecario en situación de impago garantizado con un inmueble. El inversor adquiere el crédito — no el inmueble directamente — y el resultado depende de la estrategia de recuperación elegida.
¿Qué diferencia hay entre NPL y cesión de remate?
En un NPL compras el crédito antes de que el proceso judicial llegue a subasta. En una cesión de remate, la subasta ya se ha celebrado y se transmiten los derechos de adjudicación a un tercero.
¿Cuáles son los escenarios típicos al invertir en un NPL?
Los tres escenarios principales son: acuerdo extrajudicial con el deudor, continuación de la ejecución hipotecaria hasta adjudicación, o venta del crédito a un tercero. El resultado depende del escenario ejecutado y del coste total real.
¿Cómo priorizo qué oportunidades analizar primero?
Empieza por tipología de inmueble y ubicación, valida la fase del procedimiento y define la estrategia de salida antes de entrar. Apóyate en la calculadora ROI para estructurar los números.
Las operaciones aquí mostradas son parte de procesos de cesión de remate, ventas sin posesión y venta de créditos con garantía inmobiliaria (NPL). La información se ofrece para análisis independiente. No constituye asesoramiento ni recomendación de inversión.

